PROMOCIÓN EN VENTA
Cubas de la Sagra
Promoción de chalets pareados de diseño situados en el termino de Cubas de la Sagra en Madrid. Máxima eficiencia energética (aerotermia, fotovoltaica 5Kw, Suelo Radiante) en 2 plantas con parcela de 300m2 y piscina privada.



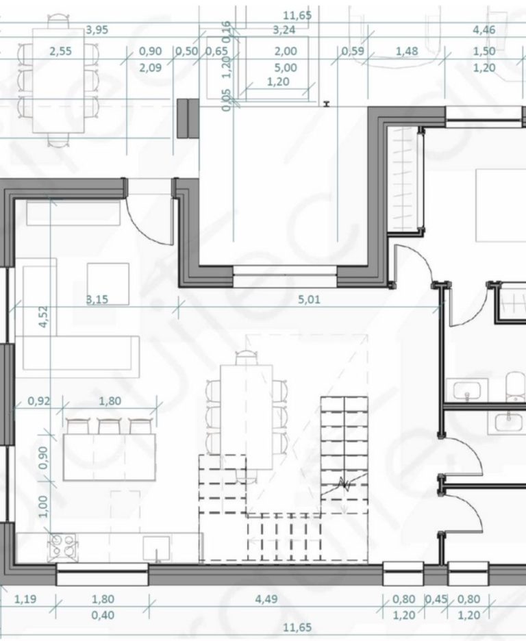
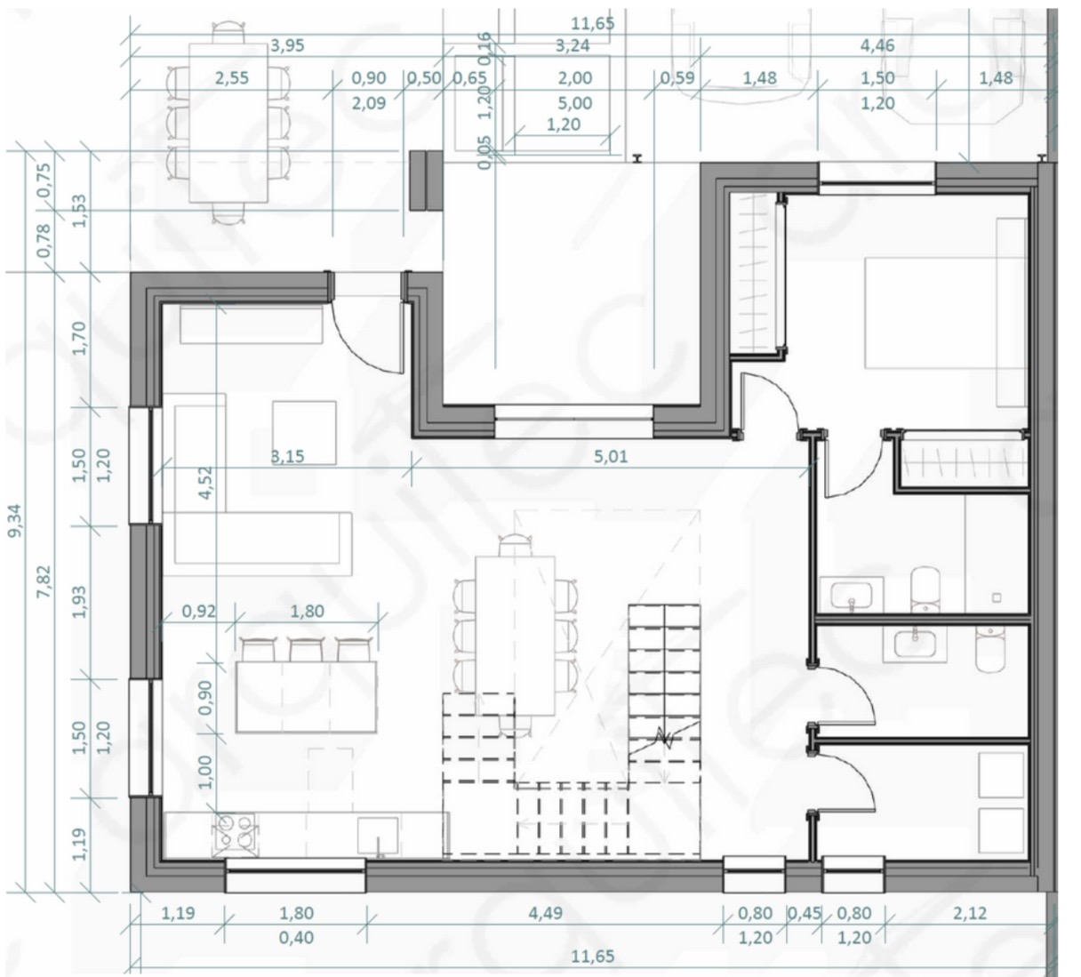
Plano Planta Baja
El corazón de la casa. Diseñada bajo el concepto Open Space, esta planta une cocina y salón en una espectacular estancia de 58m² que conecta fluidamente con el exterior. La inclusión de una habitación y baño en esta planta asegura una accesibilidad total y máxima comodidad a largo plazo.
Superficie
90m2
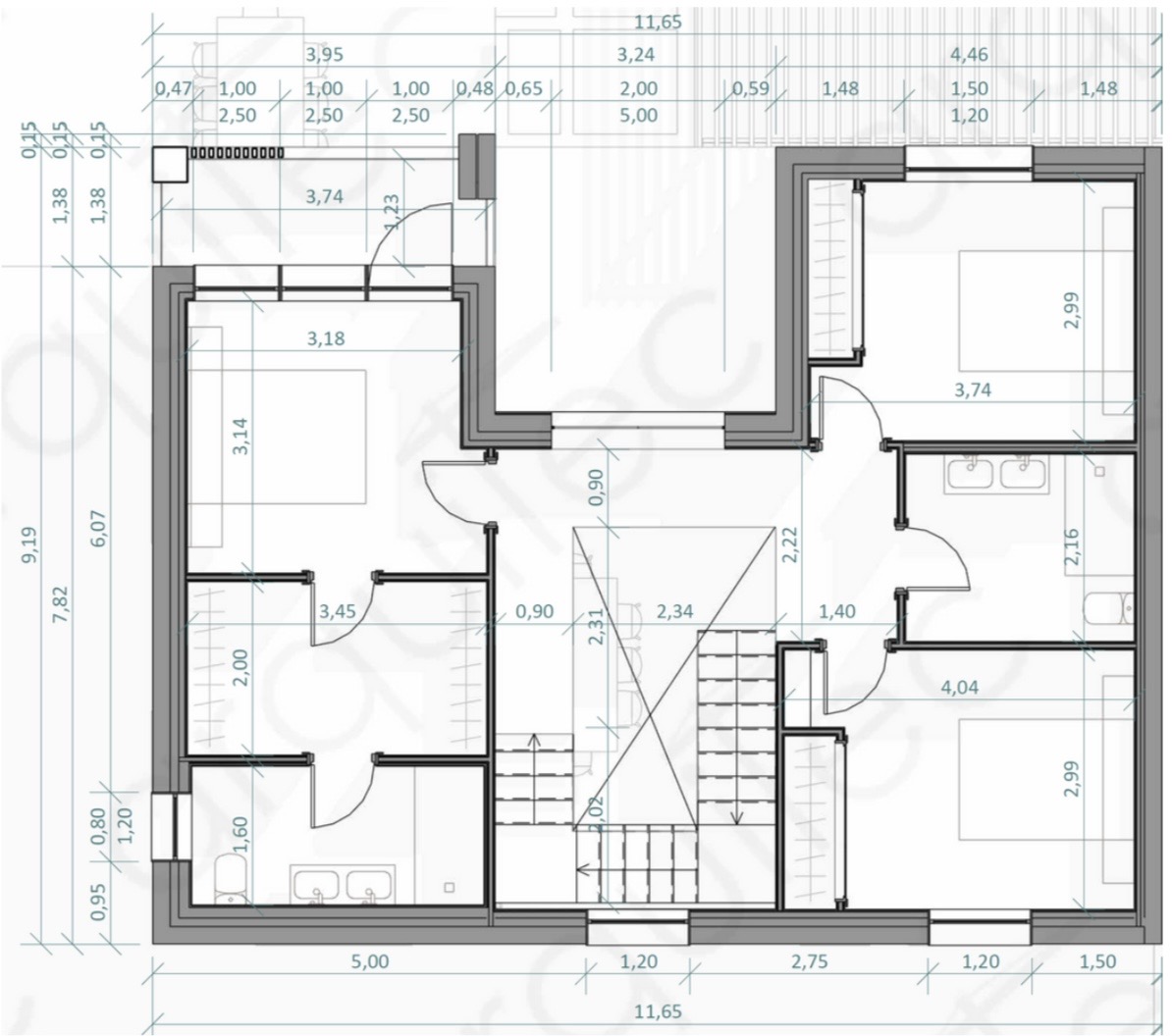
Plano Planta Alta
Descanso con mayúsculas. Despierta cada día en una suite exclusiva con terraza privada para tu café de la mañana. La distribución inteligente de esta planta optimiza cada metro para ofrecer tres dormitorios luminosos y dos baños totalmente equipados.
Superficie
85m2
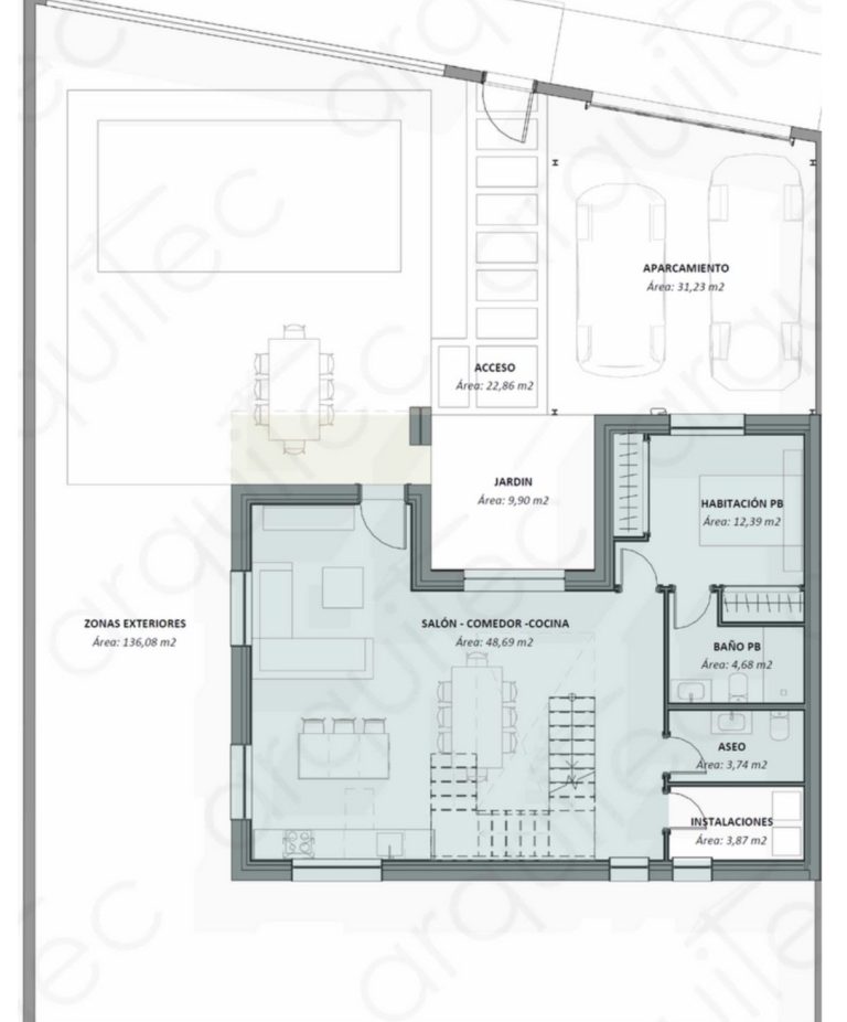
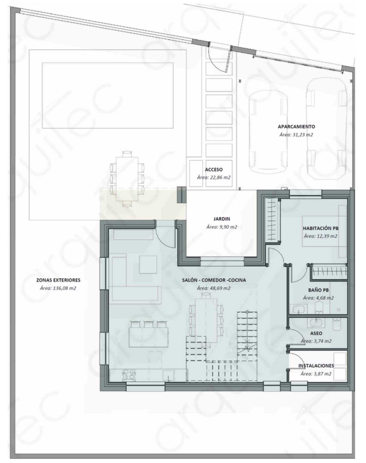
Plano Parcela
Calidad de vida exterior. Mucho más que un jardín. Tu parcela de 300m² es la extensión natural de tu hogar: relájate en tu piscina privada, organiza cenas en el porche y aparca con total seguridad en tu garaje privado. Todo el espacio que siempre has buscado.
Superficie
300m2

Memoria de Calidades
Al descargar la memoria, podrán ver las excelentes calidades que utilizamos en nuestras construcciones, asi como un amplio detalle de todas las instalaciónes de alta eficiencia como la fotovoltaica de 5Kw, el sistema de aerotermia o el suelo radiante frio/calor.
Galería de Imágenes
Cada rincón de Fuentes Claras III ha sido diseñado para cautivar los sentidos. Explora a través de esta galería la perfecta armonía entre la arquitectura vanguardista y la calidez de los materiales premium. Desde los amplios ventanales que bañan de luz natural cada estancia hasta los acabados de alta gama, descubre cómo el diseño y la funcionalidad se unen para crear un hogar irrepetible.
PROMOCIÓN EN VENTA
Urbanización Valmayor
(Méntrida - Toledo)
Promoción de chalets independientes de diseño situados en el termino de Seseña en Toledo (Cerca de Madrid). Máxima eficiencia energética (aerotermia, fotovoltaica 5Kw, Suelo Radiante) en 2 plantas con parcela y piscina privada.



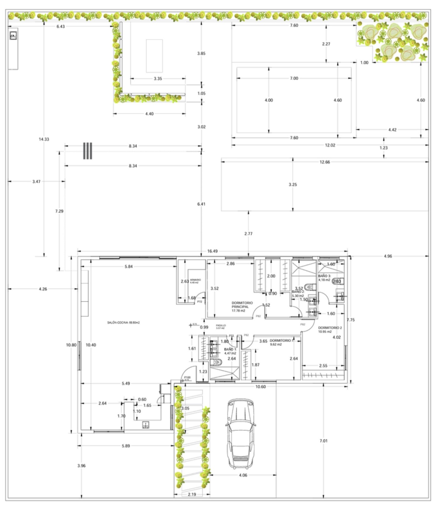
Plano en Planta
Amplitud y versatilidad en 133m². Esta planta alberga las zonas nobles de la vivienda, destacando por su distribución fluida y techos altos. Incluye un gran salón-comedor, cocina moderna integrada y estancias auxiliares, todo conectado con el porche y la parcela privada para una total accesibilidad.
Superficie
120m2
Plano Planta Alta
Con 65m² perfectamente aprovechados, alberga garaje y cuarto de instalaciones con acabados de primera calidad.
Superficie
65m2

Memoria de Calidades
Al descargar la memoria, podrán ver las excelentes calidades que utilizamos en nuestras construcciones, asi como un amplio detalle de todas las instalaciónes de alta eficiencia como la fotovoltaica de 5Kw, el sistema de aerotermia o el suelo radiante frio/calor.
PROMOCIÓN VENDIDA
Fuentes Claras II
(Cubas de la Sagra)
Promoción de chalets pareados de diseño situados en el termino de Cubas de la Sagra en Madrid. Máxima eficiencia energética (aerotermia, fotovoltaica 5Kw, Suelo Radiante) en 2 plantas con parcela de 300m2 y piscina privada.
PROMOCIÓN VENDIDA
Fuentes Claras I
(Cubas de la Sagra)
Promoción de chalets pareados de diseño situados en el termino de Cubas de la Sagra en Madrid. Máxima eficiencia energética (aerotermia, fotovoltaica 5Kw, Suelo Radiante) en 2 plantas con parcela de 300m2 y piscina privada.
PROMOCIÓN EN VENTA
VALLE GRANDE 248
(Seseña - Toledo)
Promoción de chalets independientes de diseño situados en el termino de Seseña en Toledo (Cerca de Madrid). Máxima eficiencia energética (aerotermia, fotovoltaica 5Kw, Suelo Radiante) en 2 plantas con parcela y piscina privada.



Plano Planta Baja
Amplitud y versatilidad en 133m². Esta planta alberga las zonas nobles de la vivienda, destacando por su distribución fluida y techos altos. Incluye un gran salón-comedor, cocina moderna integrada y estancias auxiliares, todo conectado con el porche y la parcela privada para una total accesibilidad.
Superficie
133m2
Plano Planta Alta
Con 77m² perfectamente aprovechados, alberga los dormitorios principales y baños completos. La distribución minimiza los pasillos para ganar superficie útil en las habitaciones, ofreciendo vistas despejadas y acabados de primera calidad.
Superficie
77m2

Memoria de Calidades
Al descargar la memoria, podrán ver las excelentes calidades que utilizamos en nuestras construcciones, asi como un amplio detalle de todas las instalaciónes de alta eficiencia como la fotovoltaica de 5Kw, el sistema de aerotermia o el suelo radiante frio/calor.
Galería de Imágenes
Cada rincón de Valle Grande ha sido diseñado para cautivar los sentidos. Explora a través de esta galería la perfecta armonía entre la arquitectura vanguardista y la calidez de los materiales premium. Desde los amplios ventanales que bañan de luz natural cada estancia hasta los acabados de alta gama, descubre cómo el diseño y la funcionalidad se unen para crear un hogar irrepetible.
PROMOCIÓN EN VENTA
Valle
Grande 249
(Seseña - Toledo)
Promoción de chalets independientes de diseño situados en el termino de Seseña en Toledo (Cerca de Madrid). Máxima eficiencia energética (aerotermia, fotovoltaica 5Kw, Suelo Radiante) en 1 planta con parcela y piscina privada.



Plano Parcela
Vida exterior inteligente. La implantación de la vivienda en la parcela maximiza la orientación solar y la privacidad. Estos 300m² permiten configurar distintos ambientes al aire libre, integrando la piscina y el porche como una extensión natural del salón.
Superficie
300m2
Plano Planta Baja
Funcionalidad y confort térmico. El corazón de la vivienda. Aquí se despliega un programa de necesidades completo, con espacios diáfanos climatizados por suelo radiante. Sus 165m² albergan las zonas de día/noche y servicios, eliminando barreras y facilitando una accesibilidad plena.
Superficie
165m2

Memoria de Calidades
Al descargar la memoria, podrán ver las excelentes calidades que utilizamos en nuestras construcciones, asi como un amplio detalle de todas las instalaciónes de alta eficiencia como la fotovoltaica de 5Kw, el sistema de aerotermia o el suelo radiante frio/calor.
Galería de Imágenes
Cada rincón de Valle Grande ha sido diseñado para cautivar los sentidos. Explora a través de esta galería la perfecta armonía entre la arquitectura vanguardista y la calidez de los materiales premium. Desde los amplios ventanales que bañan de luz natural cada estancia hasta los acabados de alta gama, descubre cómo el diseño y la funcionalidad se unen para crear un hogar irrepetible.
PROMOCIÓN VENDIDA
Jorge Manrique
(Cubas de la Sagra)
Promoción de chalets pareados situados en el termino de Cubas de la Sagra en Madrid. Máxima eficiencia energética (aerotermia, fotovoltaica 5Kw, Suelo Radiante) en 2 plantas con cocina amueblada.
PROMOCIÓN VENDIDA
Proyecto Villanueva
de la Vera
(Cáceres)
Proyecto de chalet independientes de diseño situados en el termino de Villanueva de la Vera (Cáceres). Viviendas unifamiliares de dos plantas con piscina privada.











































